Home
Our Approach
Practice
Services
Our work
Residential
Commercial
Historical & Conservation
Conceptual Designs
Contact
.
.
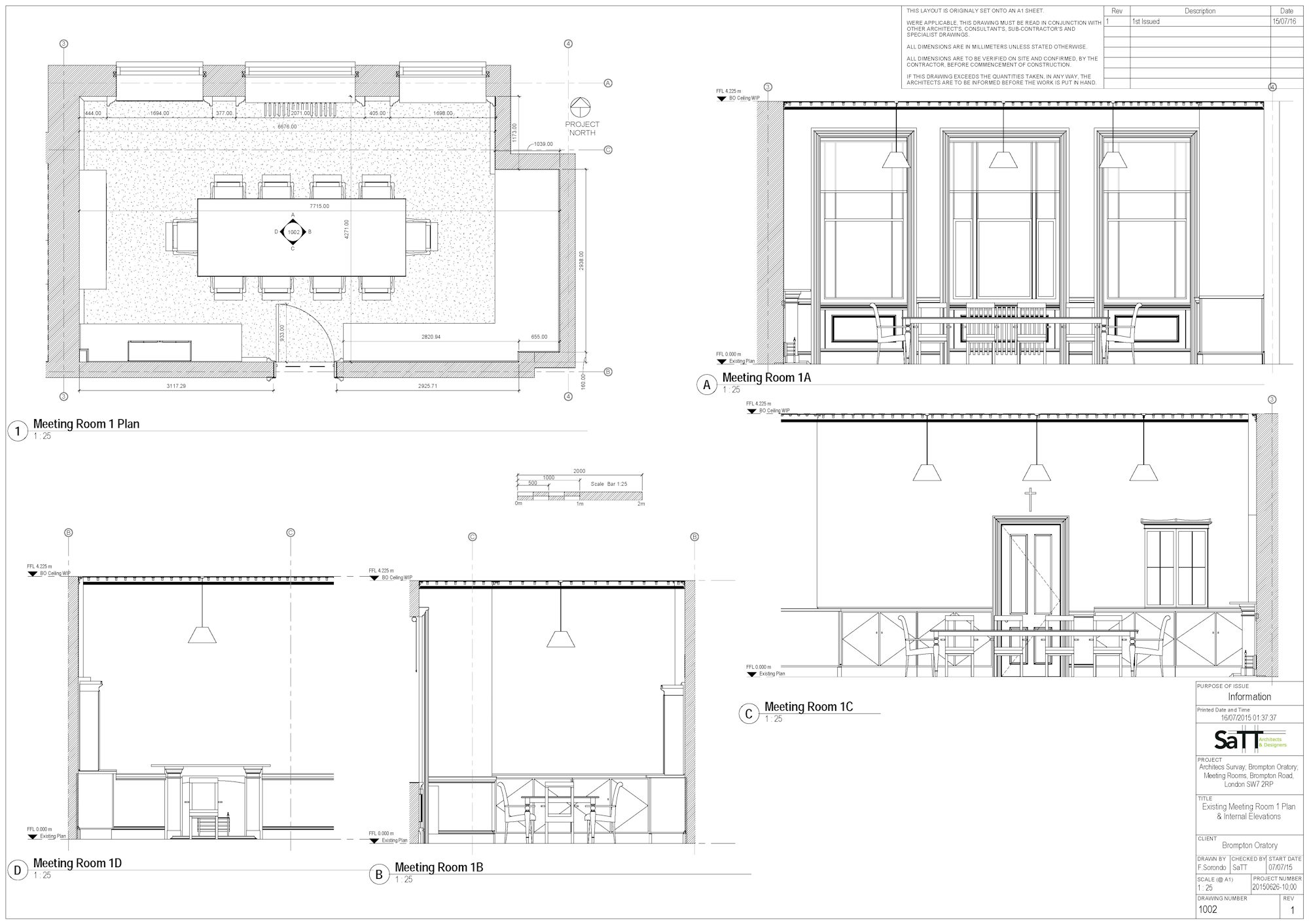
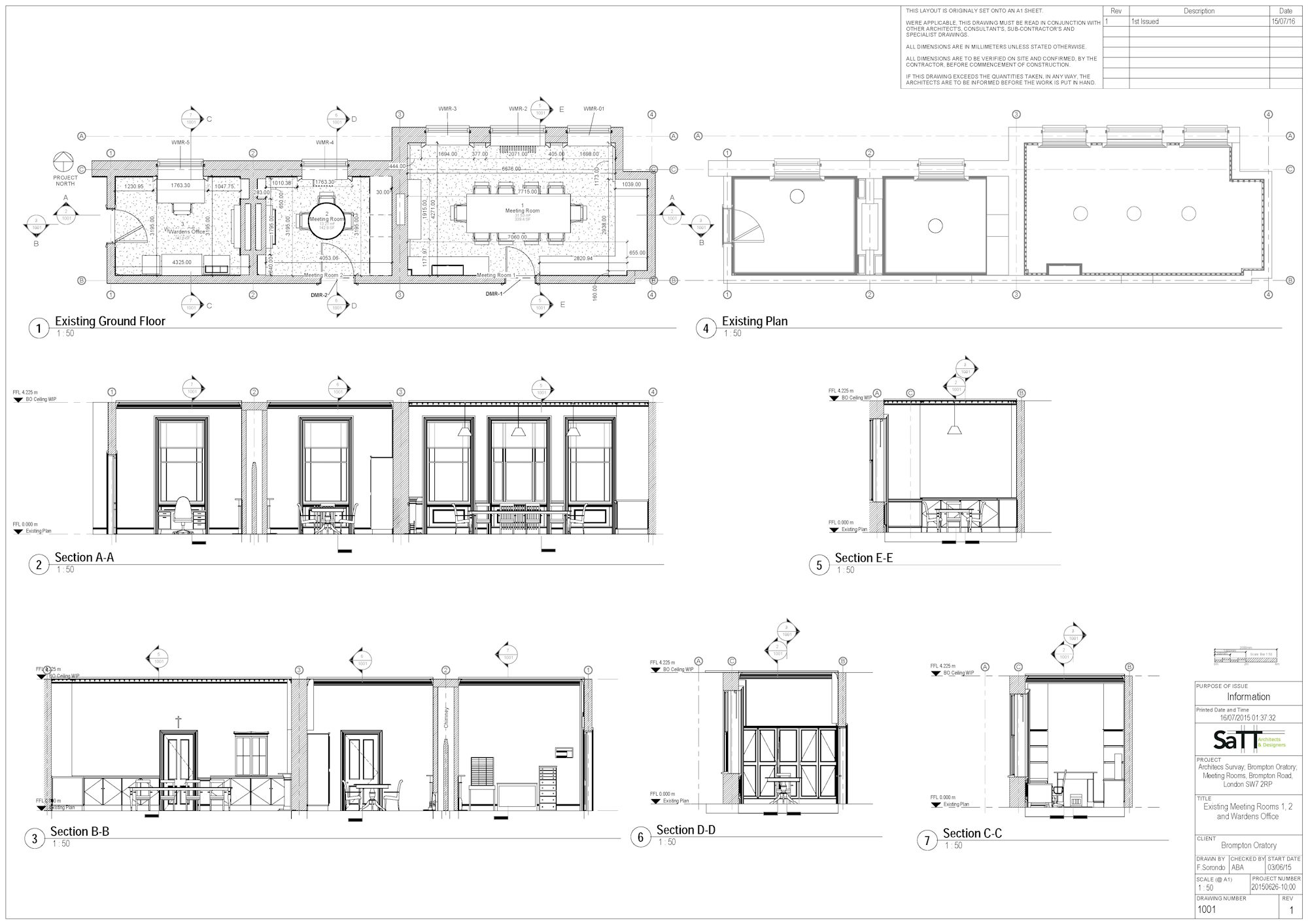
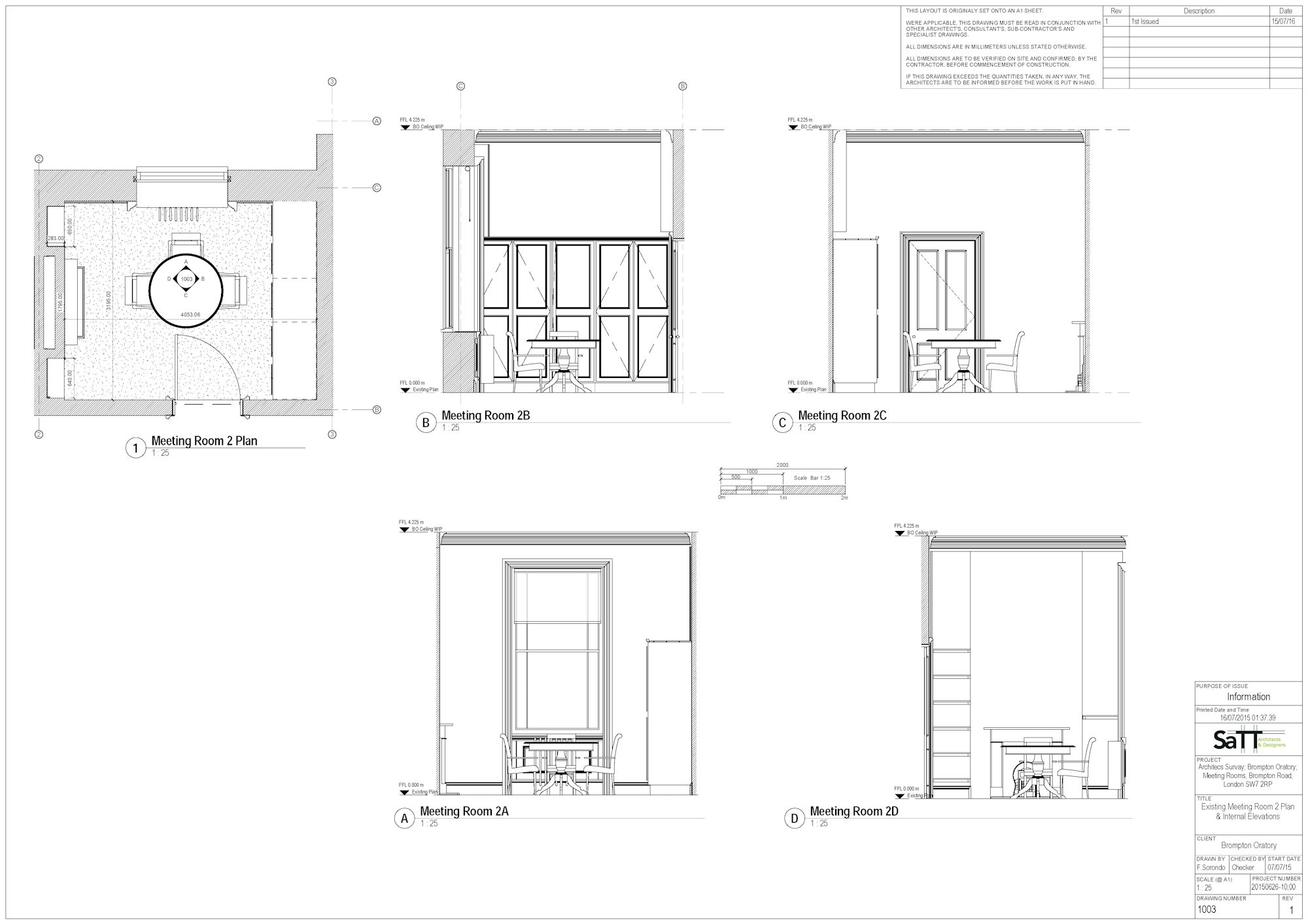
Brompton Oratory Meeting Rooms
.